Если цена в объявлении изменится, мы сразу сообщим вам об этом на электронную почту.
Нажимая «Подписаться», вы соглашаетесь с правилами.
продам дом, Соловьиная, 687 390 000 ₽
28 мар 2025
Дата публикации объявления
Обн. 28 мар 2025
Дата обновления объявления
1
Количество просмотров (+ просмотры за сегодня)
61 583 ₽/м²
Чистая продажа
Термин "Чистая продажа" означает, что в квартире никто не прописан или
есть куда выписаться и вывезти вещи. Это лучший вариант для покупателя.
Вероятность срыва сделки минимальна.
Этажей1
Площадь участка7 соток
Общая площадь120 м2
Материал домабетонные блоки
ЭлектричествоЕсть
Газоснабжениецентральное
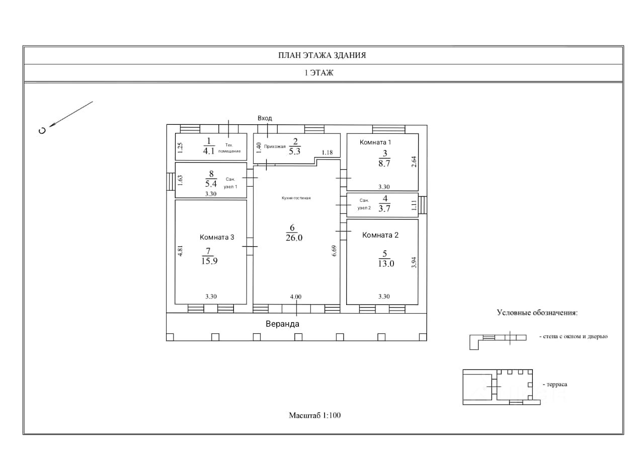
Дом, 120 м²
Московская область, Павлово-Посадский городской округ, д. Кузнецы, улица Соловьиная, 68 Продаётся уютный и комфортабельный дом в 55 километрах от МКАД!
Дом имеет площадь 120 квадратных метров и находится на участке размером 7 соток. Идеально подходит для круглогодичного проживания, так как все коммуникации уже подведены. Функциональная планировка включает в себя: кухню-гостиную 26 квадратных метров с выходом на террасу (23 квадратных метра), три изолированные комнаты (16, 13 и 9 квадратных метров), два санузла (5,5 и 4 кв.м), две гардеробные и техническое помещение (4 кв.м). Дом огорожен металлическим забором с калиткой и распашными воротами, а также имеет навес для машины из металлического каркаса с бетонным основанием.
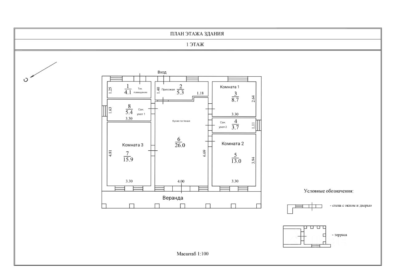
Дом, 120 м²
Московская область, Павлово-Посадский городской округ, д. Кузнецы, улица Соловьиная, 68 Продаётся уютный и комфортабельный дом в 55 километрах от МКАД!
Дом имеет площадь 120 квадратных метров и находится на участке размером 7 соток. Идеально подходит для круглогодичного проживания, так как все коммуникации уже подведены. Функциональная планировка включает в себя: кухню-гостиную 26 квадратных метров с выходом на террасу (23 квадратных метра), три изолированные комнаты (16, 13 и 9 квадратных метров), два санузла (5,5 и 4 кв.м), две гардеробные и техническое помещение (4 кв.м). Дом огорожен металлическим забором с калиткой и распашными воротами, а также имеет навес для машины из металлического каркаса с бетонным основанием. Технические характеристики дома: - Фундамент монолитная плита с ростверком под несущие стены. - Крыша - прочная металлочерепица толщ. 0,5мм., утепленная - Стены газобетон Бонолит D500 толщ. 400мм, снаружи штукатурка армированная, декоративная штукатурка короед с окраской фасадной краской. - Колонны и наличники обрамлены натуральной лиственницей. - Металлическая входная дверь. - Остекление ПВХ (2-й стеклопакет 65 профиль) - Навес для автомобиля из металлокаркаса, поликарбонат, бетонированное основание. Коммуникации: - Вода - скважина на участке, кессон, вода проведена в дом. - Канализация - локальное очистное сооружение (четырехуровневый автономный септик), подведена в дом с разводкой по месту (санузлы, кухня и т.д.) - Электричество - 15 кВт, электрощит. - Газ по границе участка Инфраструктура: В микрорайоне есть всё необходимое для комфортной жизни: школа, детский сад, магазины, аптека, больница. Автобусная остановка находится в пешей доступности. Помощь в одобрении ипотеки